» Planung | » Controlling, Projektsteuerung |
Projektentwicklung
Am Anfang eines Vorhabens muß das richtige Konzept stehen. In dieser Phase ist Qualität und Sorgfalt das Wichtigste.
Projekte dürfen nicht mit Kompromissen beginnen.

Grundsteinlegung für ein Kraftwerk

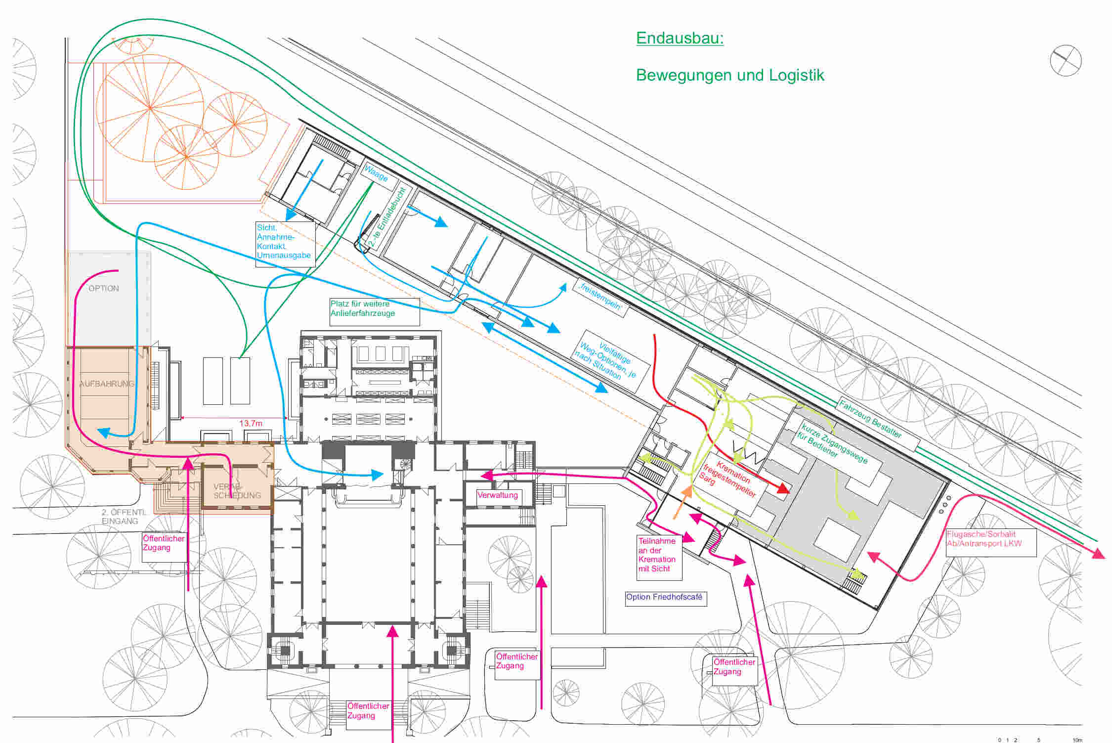
Logistikkonzept für ein Krematorium